Positioned at 28 Townsend Street, this newly built residence delivers a practical layout with multiple living options, perfect for families wanting space without compromising on style.
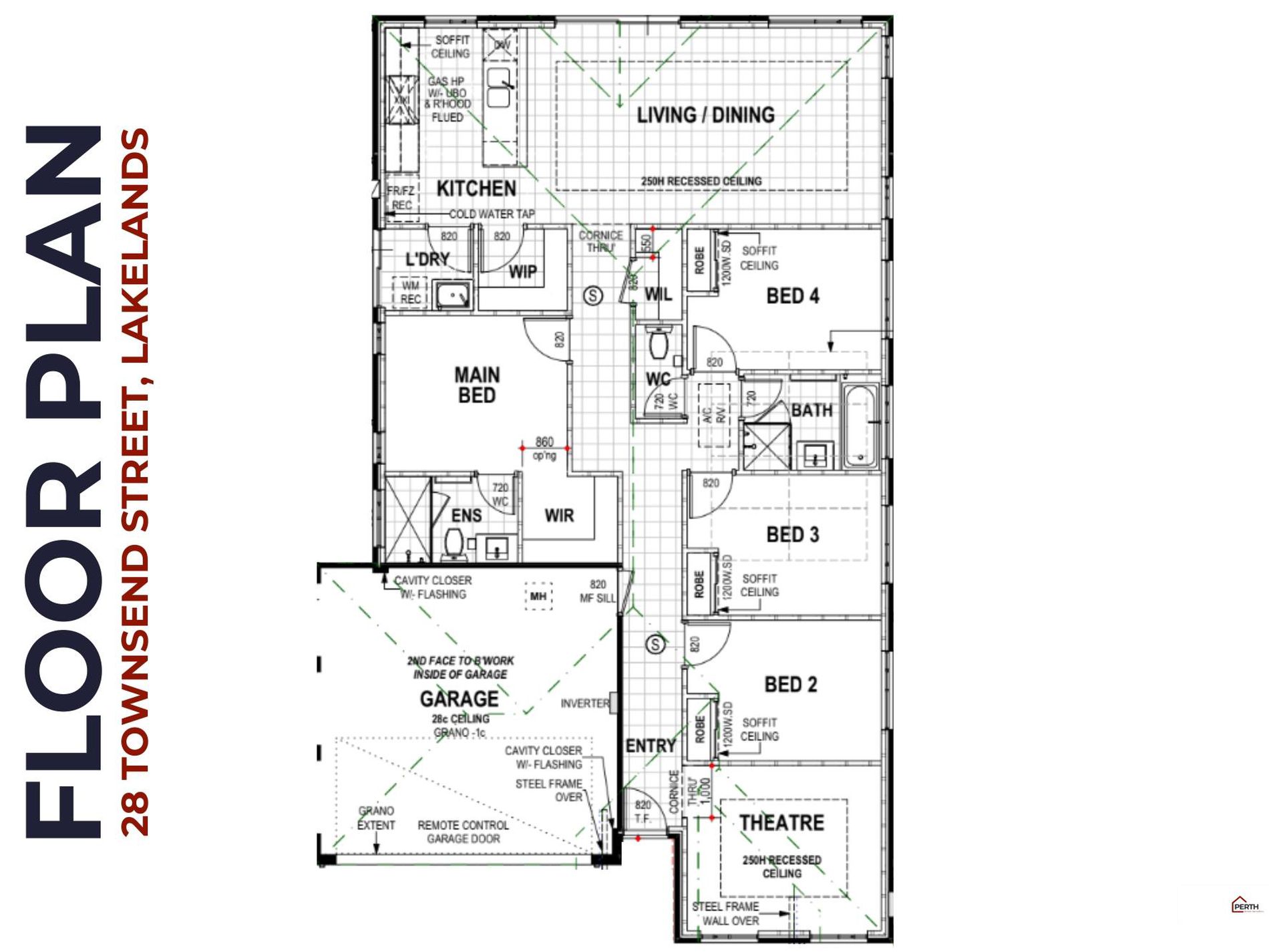
From the moment you walk in, the home offers a sense of separation and flexibility. At the front, a versatile theartre room for movie nights, used as a home office, or adapted to suit your lifestyle needs. Moving through, the home opens into a spacious central hub where the kitchen, living and dining areas come together to create an easy, everyday living zone.
The kitchen is designed with functionality in mind, featuring gas cooking, a generous oven, dishwasher, and a walk-in pantry that provides plenty of storage. Theres also a designated fridge space with plumbing already in place.
The master bedroom is tucked away for privacy and includes a walk-in robe and ensuite, while the remaining bedrooms are well-proportioned with built-in storage and access to the main bathroom, complete with a bathtub.
Comfort is covered year-round with ducted reverse cycle air conditioning, while outside offers a secure, low-maintenance backyard with room to move. A double garage with internal access and additional storage solutions complete the package.
Set within a well-connected pocket of Lakelands, this home places you close to everything you need. From shopping and cafs to schools, parks, and transport links, convenience is right at your doorstep. With easy freeway access and the train station just minutes away, commuting is simple, while weekends can be spent enjoying nearby beaches and open green spaces.
DISCLAIMER: This advertisement has been prepared in good faith from information supplied by the lessor and may be subject to change. While we use our best endeavors to ensure accuracy, no warranty is given and prospective tenants should make their own enquiries to verify all details. Please note the property is a brand-new build and some finishes/landscaping may still be finalised. We encourage a drive-by and external viewing (including looking through windows from outside). We also accept applications based on the walkthrough in this advert - to apply or request the application link, please contact Perth Rental Specialists.
Features
- Dishwasher



























